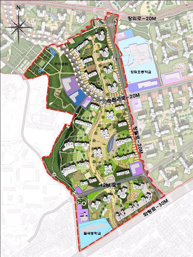
장위 뉴타운에서 초역세권역에 있지만 뉴타운 지구에서 제외될 위기가 있었던 장위 15구역(장위동 233-42 일대)이 재정비촉진지구에 다시 편입됐습니다.
장위15구역은 서울시 직권으로 2019년 7월 장위재정비촉진지구에서 제외되었으나 재개발조합이 소송을 진행하였고, 그 결과 2021년 1월 판결 승소로 서울시 직권해제 처리가 무효가 되어 뉴타운지구로 재편입되었습니다.
장위15구역 특징
성북구청의 ‘장위 재정비촉진지구 변경 및 장위15구역 재정비촉진계획 결정(변경) 안’에 대한 공람공고에 따르면 장위 15구역은 3318 가구, 최고 36층으로 건립이 예정 됐습니다.
장위15구역은 서울 지하철 6호선 상월곡역과 맞닿은 초역세권이고, 월곡초등학교와 장위초등학교를 품은 장위뉴타운 내 알짜입지라는 평을 받고 있습니다.
다만 구역 내 가로주택정비사업을 진행하는 장위15-1구역이 속해있어 재개발조합과 마찰이 있었지만 성북구청이 중재를 하고 있으며, 성북구청 관계자는 “장위15구역과 15-1구역 갈등은 갈등조정위원회를 통해 조정이 이뤄지고 있다”라고 설명했습니다. 장위15구역은 지난 7일 주민설명회를 개최했으며 공람 후 구의회 의견 청취, 공청회를 거쳐 서울시 도시재정비위원회에 상정될 계획입니다.




장위 뉴타운 내 진행 사항
서울 뉴타운 가운데 단일 규모로는 최대규모인 장위뉴타운은 이번 15구역 재정비촉진지구 재편입으로 총 10개 구역으로 재편됐습니다.
‘래미안 장위 포레카운티’(1 구역), ‘꿈의 숲 코오롱하늘채’(2 구역), ‘래미안 장위 퍼스트하이’(5 구역), ‘꿈의 숲 아이파크’(7 구역)은 모두 입주를 끝냈습니다.
‘장위 자이 레디언트’(4 구역)는 일반분양을 마치고 착공이 진행 중이며 ‘라디우스파크 푸르지오’(6 구역)은 이주·철거 후 시공사와 공사비 협상 중입니다.
장위 14 구역은 지난 8월 서울시 건축심의를 조건부 통과한 상태이며,
장위 3 구역은 지난 9월 대법원이 조합설립인가를 취소했습니다.
장위 뉴타운 대표 단지 시세
래미안 장위 포레카운티

단지 정보
▶ 세대수 : 939세대(기타임대 162세대 포함, 총 10개동), 최저 12층~ 최고 29층, 총주차대수 1084대(세대당1.15대)
▶ 입주일 : 2021년 5월
▶ 면적 : 24평, 34A평, 34B평, 41평
최근 실거래가
▶ 25평~26평 7억4,000만원~8억 1,000만원
▶ 34평A 8억 8,000만원~9억 6,500만원
▶ 34평B 8억 8,000만원~9억 6,500만원
▶ 41평 11억~12억 500만원



꿈의숲 코오롱 하늘채

단지 정보
▶ 세대수 : 513세대(기타임대 92세대 포함, 총 5개동), 최저 16층~ 최고 30층, 총주차대수 587대(세대당1.14대)
▶ 입주일 : 2017년 10월
▶ 면적 : 24B평, 24C평, 25A평, 34B평, 34A평, 35C평, 38평
최근 실거래가
▶ 24B평, 24C평 7억1,000만원~8억
▶ 25평 7억3,000만원~8억2,000만원
▶ 34B평, 34A평, 35C평 8억 5,000만원~9억 8,000만원
▶ 38평 12억 8,000만원



꿈의숲 아이파크

단지 정보
▶ 세대수 : 1711세대(기타임대 295세대 포함, 총 19개동), 최저 7층~ 최고 29층, 총주차대수 2054대(세대당1.2대)
▶ 입주일 : 2022년 7월
▶ 면적 : 25A평, 25B평, 30평, 34A평, 34B평, 42평
최근 실거래가
▶ 25A평, 25B평 8억3,500만원~9억1,000만원
▶ 30평 9억~10억
▶ 34A평, 34B평 10억 5,000만원~11억 5,000만원
▶ 42평 13억 5,000만원~14억3,000만원



래미안 장위 퍼스트하이

단지 정보
▶ 세대수 : 1562세대(기타임대 276세대 포함, 총 16개동), 최저 6층~ 최고 32층, 총주차대수 1904대(세대당1.21대)
▶ 입주일 : 2020년 11월
▶ 면적 : 25평, 33A평, 33B평, 33C평, 38평, 43평
최근 실거래가
▶ 25평 7억4,000만원~8억3,000만원
▶ 33A평, 33B평, 33C평 8억8,000만원~9억6,000만
▶ 38평 11억 5,000만원~12억 5,000만원
▶ 43평 12억 5,000만원~13억5,000만원



함께보면 좋은글
청량리역 인근 재개발 1750세대 아파트 단지 확정. 전농8구역 주변 시세
청량리역 인근 재개발 1750세대 아파트 단지 확정. 전농8구역 주변 시세
동대문구 청량리역 인근 주택 밀집 구역인 전농 8구역에 1750가구 규모의 대단지가 들어섭니다. 저층 노후 주택 위주의 전농 8구역 개발 소식과 주변 시세 알아보겠습니다 청량리역 인근 전농 8구
happy.blogchocho.com
재개발과 재건축 차이점 궁금한 부분만 짚어서 3분만에 파악하기
재개발과 재건축 차이점 궁금한 부분만 짚어서 3분만에 파악하기
"재개발", "재건축" 부동산 투자 시작하시는 분들은 약간씩은 헷갈려 하시는 부분 입니다. 재개발과 재건축 어떤 차이가 있는지 많이 궁금해 하시는 부분만 짚어서 간단히 알아보겠습니다. 재개
happy.blogchocho.com
'행복주택,LH,SH임대,분양,재건축 등' 카테고리의 다른 글
| 장위뉴타운 14구역 2469세대 건축심의 통과, 위치와 시세 (0) | 2023.12.12 |
|---|---|
| 민간 임대아파트 분양 일정 확인과 신청 방법은? (0) | 2023.11.29 |
| 재개발과 재건축 차이점 궁금한 부분만 짚어서 3분만에 파악하기 (0) | 2023.10.18 |
| 청량리역 인근 재개발 1750세대 아파트 단지 확정. 전농8구역 주변 시세 (0) | 2023.10.18 |
| 전세보증금반환보증 보험료 청년 지원 안내-지원자격,금액,신청방법,신청바로가기 (0) | 2023.10.06 |

